villas B (GE)

2018-2020

mandat partiel (Phase 3 SIA: avant-projet/ autorisation) en tant que collaborateur responsable,

avec ris+partenaires architectes sa /Gaëtan Houart

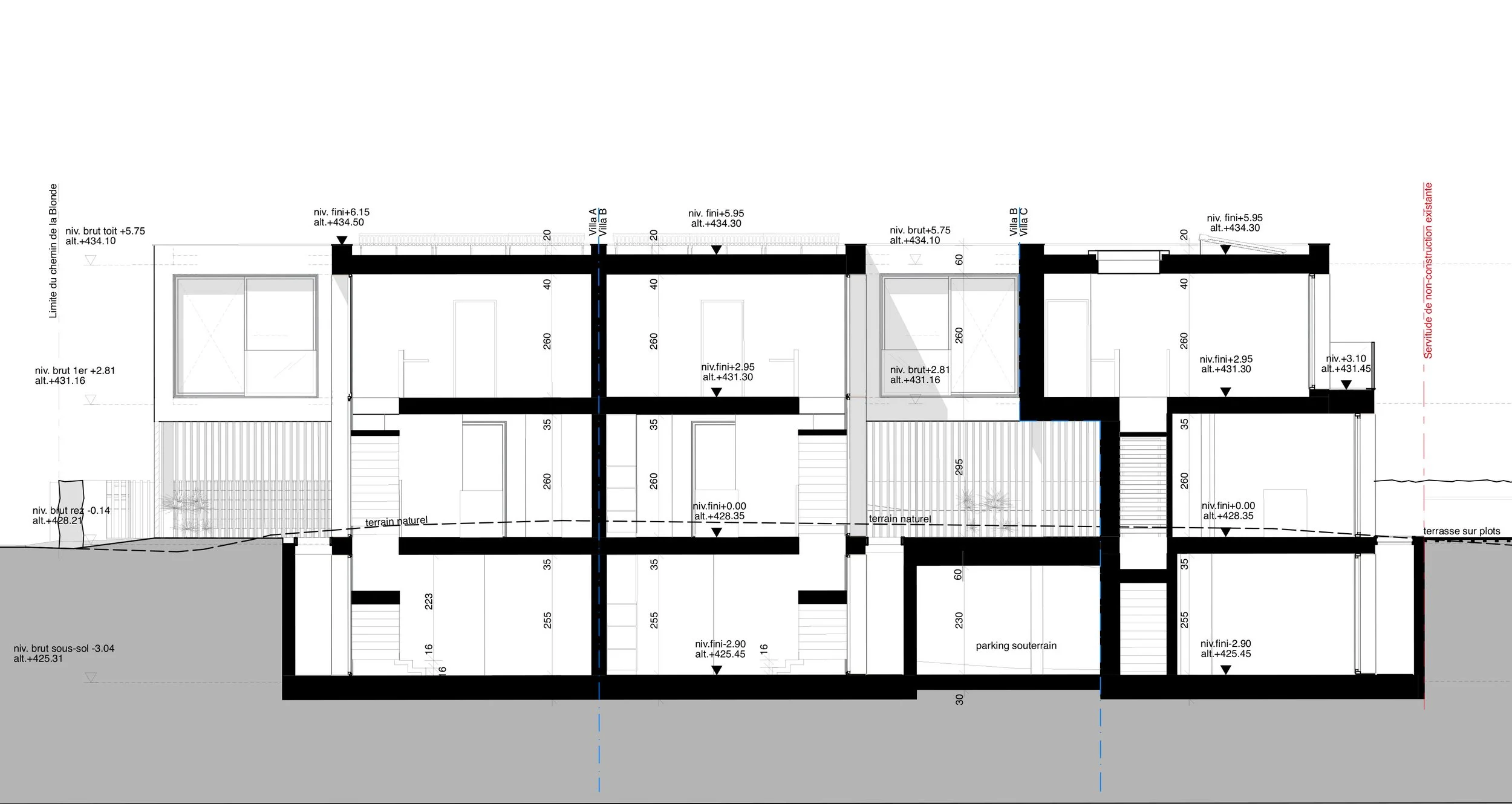
3 villas contigües

(typologies 3 à 4 chambres)

patios et aménagements extérieurs.

Surface: 750m² (SBP)

Volume: 2'500m³ SIA

Crédit images: Atelier-vert-pomme.com
Précédent
Précédent

M >700m²

Suivant
Suivant

M >450m²