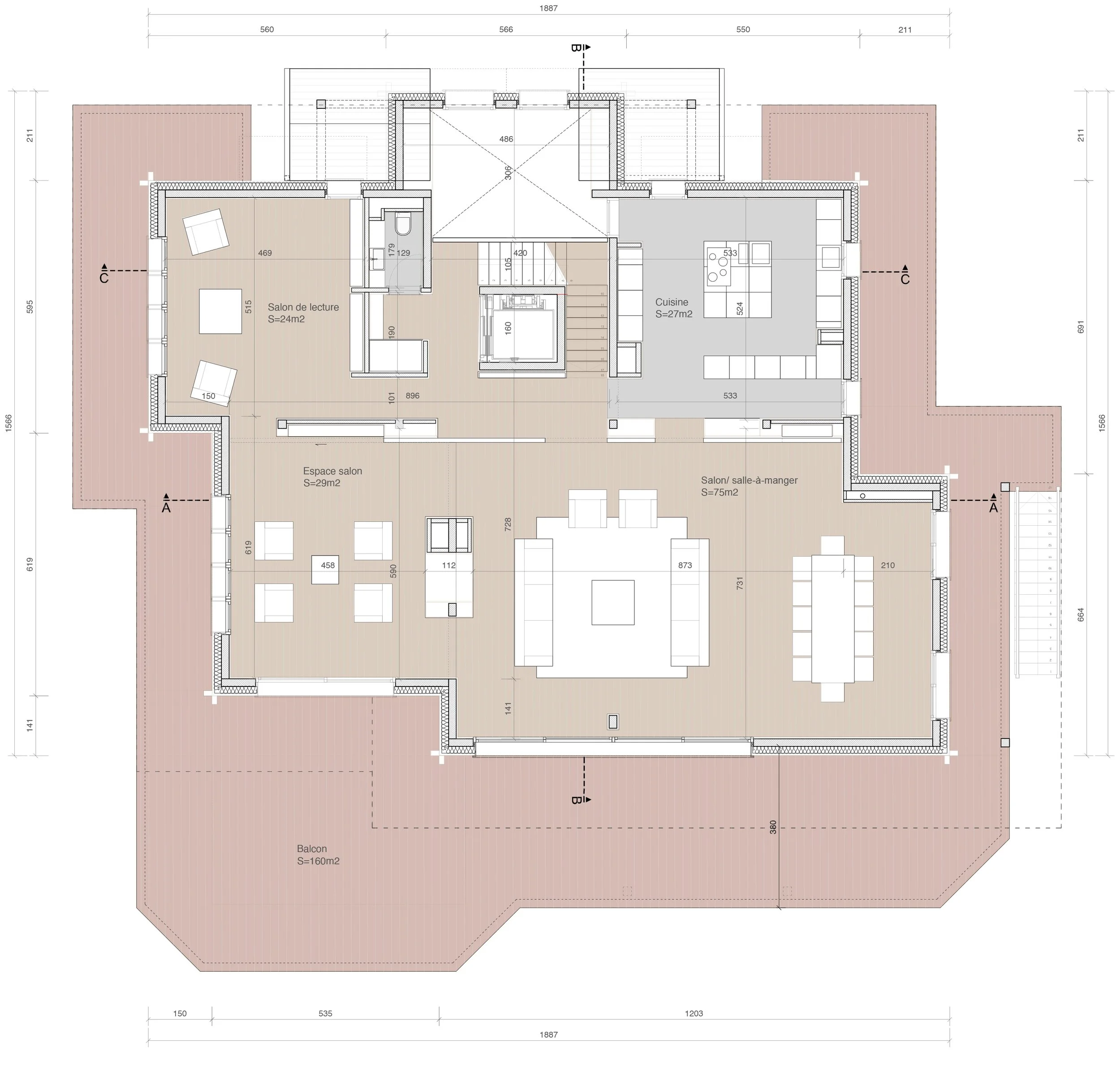
Chalet K (VS)

2016-2017

mandat complet (Phase 3, 4 et 5 SIA) en tant que collaborateur responsable

avec Amaldi-Neder & Associés, Architectes sa/ Hania Cochard-Khalef.

Chalet de standing (6 chambres)
Tunnel  et parking souterrain 8 voitures, salle de jeux, piscine intérieure, ascenseur, cinéma, caves à vins et aménagements extérieurs.
Surface: 750m² (SBP)
Volume: 2’500m³ SIA 
Coût : <5Mio
Précédent
Précédent

L >1'000m²

Suivant
Suivant

M >700m²